IGLO EDGE
1,999 kr
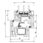
Våra nya, mest teknologiskt avancerade fönster kännetecknas av en utmärkt värmeisoleringsparameter: Uw = 0,66 W/(m2K)* och en modern, kantad form. Det är bl.a. profilens konstruktion bestående av 7 kammare och de 3 EPDM-tätningarna, varav en utgör en central tätning, som bidrar till de väldigt goda värmeisoleringsparametrarna.
Standardutrustning:
- glaspaket bestående av två kammare Ug = 0,5 W/(m2K)
- varm plastram Swisspacer Ultimate
- V-perfect fog
- 4 inbrottsskyddsbleck beroende på fönsterbågens storlek och beslag
- mikroventilation
- handtag DUBLIN av aluminium
- mekanism för blockering av felaktigt handtagsläge
- omkretstätningar, tätningar vid glasrutor och centrala tätningar i svart eller grå färg
- fyllning i nedre spåret i beslag
- list under fönsterbänk
- flera olika färger på PVC-fanér
- 3 profilfärger att välja mellan: vit, brun och antracitgrå





